Skip to content
You’re in the Wright Place!
Home
Sites
USA Map
FLW Illinois Trail
FLW Wisconsin Trail
UNESCO World Heritage List
Google Map with FLWsites
Tour
Rent
For Sale
Movies
Shop
News
Home
Sites
USA Map
FLW Illinois Trail
FLW Wisconsin Trail
UNESCO World Heritage List
Google Map with FLWsites
Tour
Rent
For Sale
Movies
Shop
News
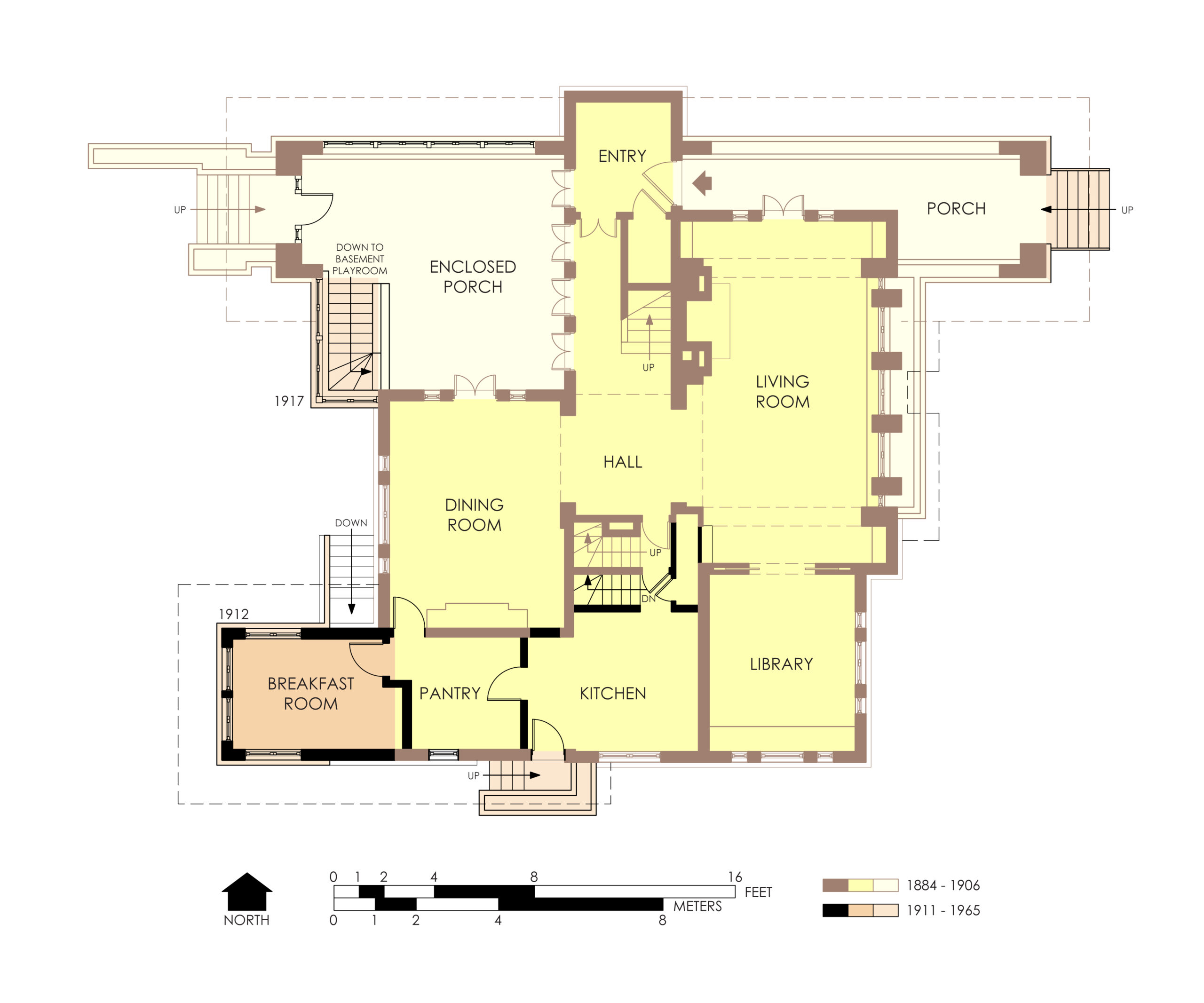
Hills-DeCaro House First Floor Plan Pre-Fire